Elige serie del listado
menu
PE-50
Carpintería abisagrada de 50 mm con rpt
info
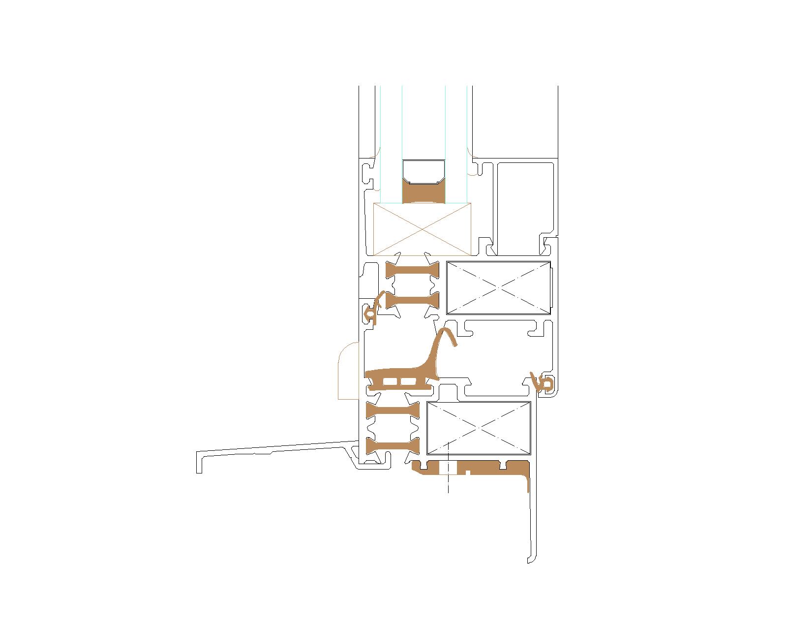
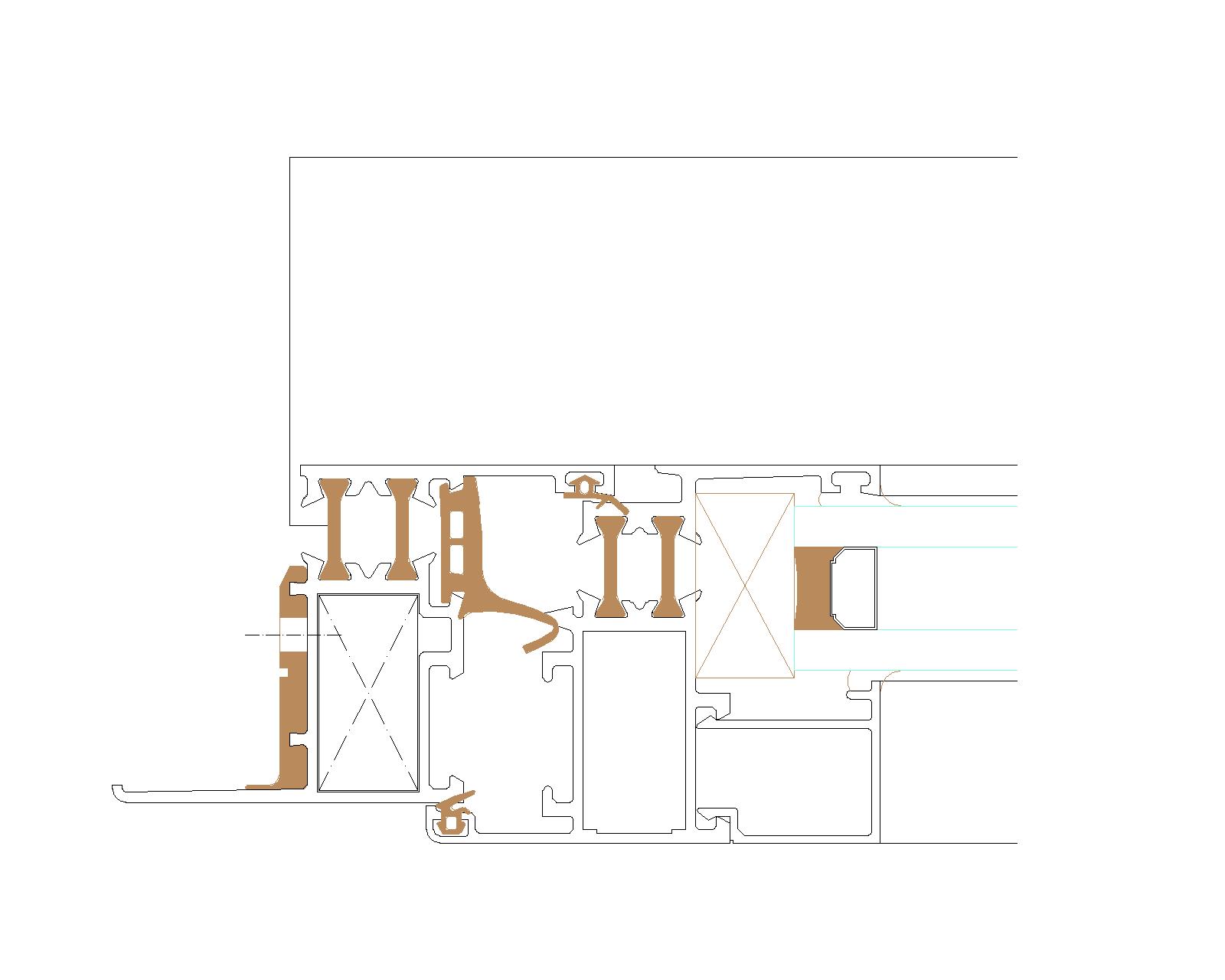
Descripción y datos técnicos
- Carpintería con rotura de puente térmico en marco y hoja de aluminio extruido aleación 60-63/60-60 con tratamiento T5 según norma UNE 38337 con espesor de perfiles de 1,5 mm y 2 mm en zonas de acople de herrajes.
- Rotura de puente térmico mediante doble pletina de poliamida-6 de 16 mm reforzada en el marco y mediante perfil de poliamida/EPDM doble dureza en la hoja.
- Estanqueidad entre marco y hoja mediante triple junta de estanqueidad de EPDM, mejor adherencia al acabado interior mediante perfil de doble dureza incorporado en el tapajuntas y escuadra de aluminio de presión regulable para conseguir inglete perfecto.
- Marco inferior con desagüe de aguas infiltradas, deflector exterior de plástico y vierteaguas exterior de aluminio.
- Secciones:
- Marco – 49 mm / Hoja – 55 mm
- Máximo acristalamiento:
- 36 mm
- Compatible con herraje de Canal Europeo.
- Marco inferior con desagüe de aguas infiltradas, deflector exterior de plástico y vierteaguas exterior de aluminio.
- Posibilidades de apertura: practicable, abatible, oscilobatiente, osciloparalela, proyectante al exterior y pivotante.
info
Ensayos y transmitancia
- Transmitancia (Ventana de 1 hoja de 1500 x 1500 mm con vidrio Ug=1 W/m2K)
- Uw: 1,6 W/m2K (UNE-EN ISO 10077-2:2003)
- Permeabilidad al aire.
- CLASE 4 (UNE-EN 12207)
- Estanqueidad al agua.
- CLASE E1050 (UNE-EN 12208)
- Resistencia al viento.
- CLASE C5 (UNE-EN 12210)
- Capacidad de soportar cargas.
- Apto (350 N) (UNE-EN 13115)
Ensayo de referencia: Ventana de 2 hojas de 1230 mm x 1480 mm con cajón de persiana.



