Elige serie del listado
menu
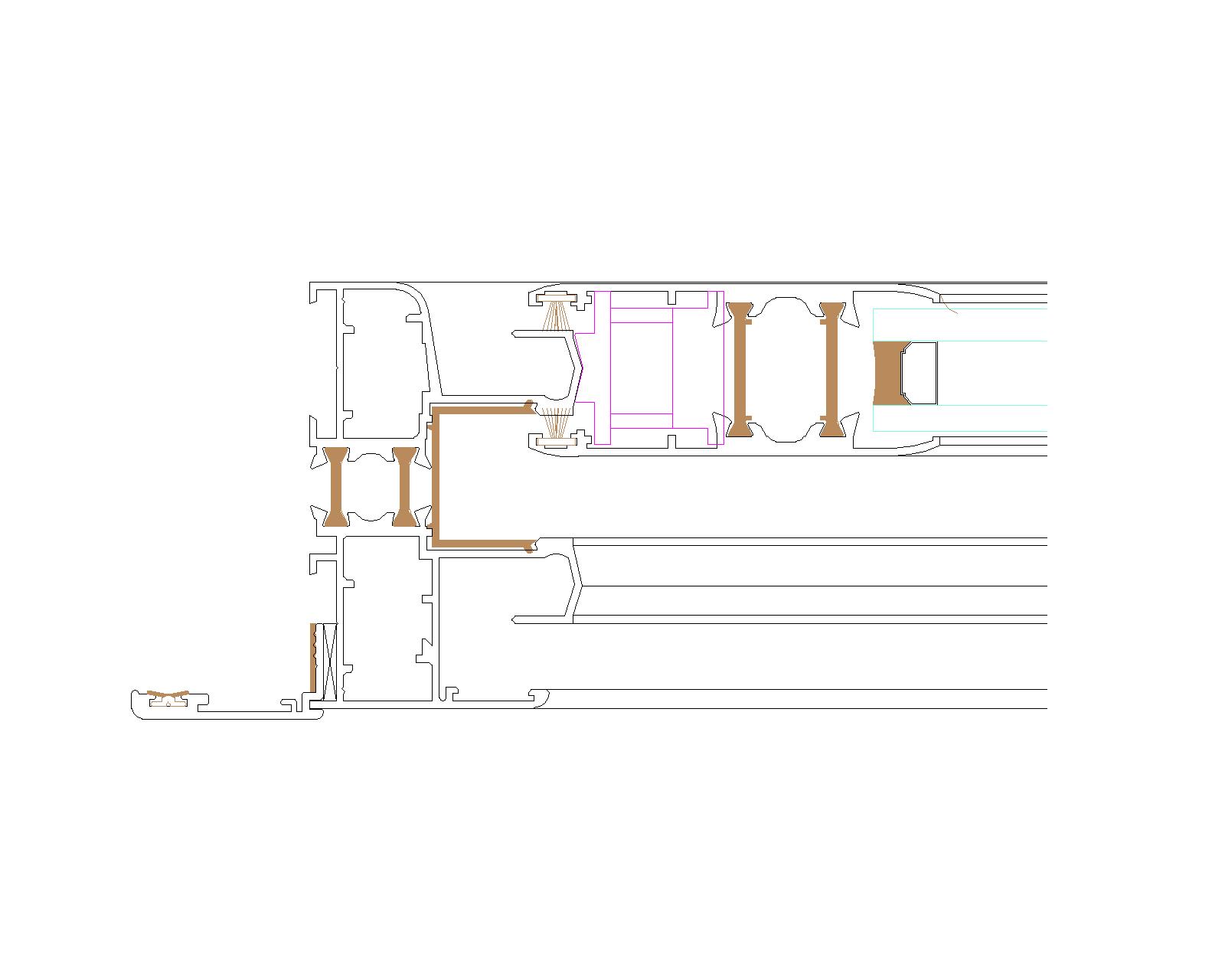
SI-76 RPT
Carpintería corredera con rpt
info
Descargas
info
Descripción y datos técnicos
- Carpintería corredera con rotura de puente térmico.
- Perfil de hoja central testa minimalista de 37 mm frente visto.
- Posibilidad de marcos de dos y tres carriles para grandes aperturas.
- Varias opciones de cierre, permitiendo incorporar un cierre multipunto accionado mediante maneta.
- Rotura de puente térmico mediante poliamida en marco con varillas de 18 mm y 25 mm en hoja.
- Peso máximo por hoja: 180 kg (2 ruedas tándem regulables por hoja).
- Secciones:
- Marco – 80 mm / Hoja – 32×77 mm
- Máximo acristalamiento:
- 26 mm
info
Ensayos y transmitancia
- Transmitancia (Ventana de 2 hojas de 1480 x 2180 mm y vidrio Ug=0,8 W/m2K)
- Uw: 1,6 W/m2K (UNE-EN ISO 10077-2:2003)
- Permeabilidad al aire.
- CLASE 3 (UNE-EN 12207)
- Estanqueidad al agua.
- CLASE 7A (UNE-EN 12208)
- Resistencia al viento.
- CLASE C5 (UNE-EN 12210)
Ensayo de referencia: Ventana de 2 hojas de 1230 x 1480 mm
info
Descargas



